純白的布被隨意的固定在地上,畫筆輕輕柔柔的添上幾抹色彩,追隨心中的想法畫出一幅畫,不是名家之作,只是隨意抒發,但恰恰好,就是最自然的模樣。


純白的布被隨意的固定在地上
畫筆輕輕柔柔的添上幾抹色彩
追隨心中的想法畫出一幅畫
不是名家之作,只是隨意抒發
但恰恰好,就是最自然的模樣
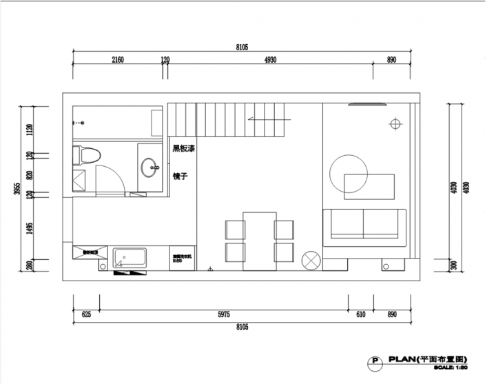
一層平面布置圖
二層平面布置圖
小區:活力島水漾花城
風格:北歐風格
面積:70平復式
設計師:李博
裝飾公司:青庭裝飾
硬裝預算: 7.5萬
在這里,仿佛來到了木頭的世界,淺色的木板將墻壁與地面融為一體,造型獨特的抱枕和綠植又增添了幾分生機。純色的窗簾、沙發與桌子使得整個空間干凈簡潔,讓屋主可以呆在這里放松小憩。
白色打底的空間里,粉色點綴在屋內,毛茸茸的抱枕、迷倒萬千少女的粉紅豹、造型簡單的手推車,滿滿的少女心。墻上的植物壁畫與床上隨意擺放的綠植相照應,自然感十足。
簡易帳篷立于一旁,向人們訴說了屋主有一顆童真浪漫的心。整個屋子如同童話中的世界。
暖色的吊燈,粉色的墻壁,純色的桌面,馬卡龍色的碗碟,一切都是溫暖的存在。墻壁上精致的壁畫在溫暖之外增添了格調。
橫與豎的線條撐起了整個廚房,簡單的線條拉伸了視野區域,無形中增加了空間感,極淺的色彩讓整個空間明快,黃色的鍋具與馬卡龍色的杯子、綠色的多肉又讓視線有了聚焦點,使整個空間多了幾分居家氣息。
錯落有致的小燈纏繞在黑色的樓梯上,暖黃色的燈光減弱了黑色的冷酷質感,增添幾分柔和。墻壁上掛著極具北歐風情的掛布,點綴在一片白色的世界里,兩側留有余白,如同詩意一樣美。

透明的推拉門拉伸了空間,厚實的白色門框與洗手臺與淺色柜門、地板相襯,有重有輕,搭配的讓人感覺很舒服??蓯鄣亩嗳獗粩[放在臺盆邊,偶有閑趣,可以澆點水。