我想有個家,七分簡約大氣,三分溫暖俏皮,有暖色的燈光,有明亮的落地窗,我向往光明,追求自由。

我想有個家
七分簡約大氣
三分溫暖俏皮
有暖色的燈光
有明亮的落地窗
我向往光明,追求自由
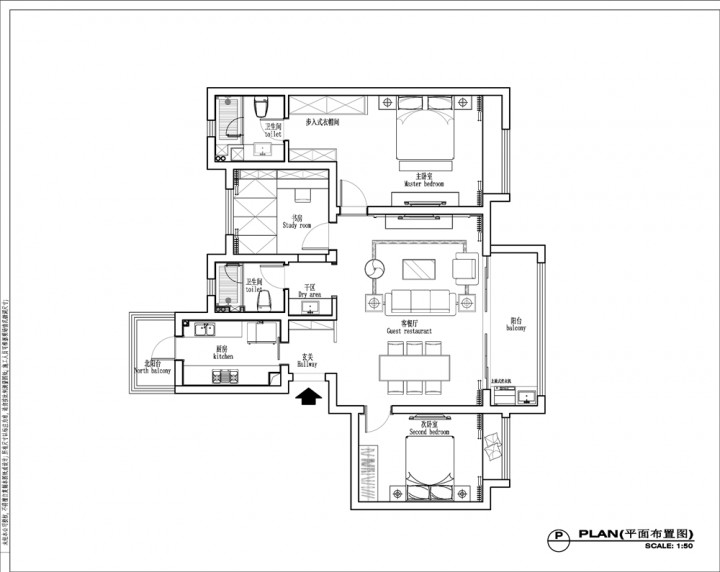
項目地址:尊域雅苑
戶型面積:125㎡
設計師:王雪
風格:簡美風格
硬裝預算:15萬
裝飾公司:青庭設計裝飾
客廳 簡約明亮不失溫暖
布藝沙發和實木家具是簡美風格的一貫追求,簡約大氣,花色的沙發溫馨之余帶有一絲俏皮,落地窗的設計保證了良好的采光度,簡潔明亮。客餐廳一體的設計,寬敞明亮,協調的顏色更顯空間感和整體感。
餐廳 活力滿滿向往自由
第一眼看見的就是掛在純色墻上的三幅壁畫,灑脫不羈、各有神態的三只狗狗與追求簡美風格的主人一樣的向往自由。黃色的花為厚實的實木餐桌增添了幾分活力,與暖色的吊頂燈光相得益彰。
主臥 格調大氣溫馨舒適
一張床,兩只床頭柜,簡單的空間布局,干凈利落,沒有瑣碎多余的設計,顯得臥室簡約大氣。淺色系的窗簾與地板、墻壁、床被的顏色相似,深色的床板和床頭柜又拉開了視覺上的高度。暖色的燈光讓臥室溫馨感十足。
次臥 實用舒暢溫和簡單
L字形的書柜榻榻米合理的利用空間,原木的書桌書柜簡單內斂,隨意擺放的吉他、籃球和抱枕又有幾分的溫馨俏皮。