瀏覽量: 1367次 2025-05-26 14:46:29來源:青庭設計裝飾
在廚房裝修中,櫥柜尺寸的合理規劃堪稱 “空間魔法”。精準的尺寸設計不僅能提升廚房的收納與操作效率,更能從根源上避免彎腰、踮腳等反人類操作帶來的疲憊。從臺面高度到柜體深度,每個數字背后都藏著人體工學與空間美學的巧妙結合。
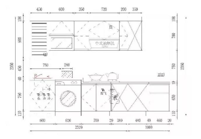
一、臺面高度:適配身高的 “黃金比例”
傳統櫥柜常以 80cm 為標準高度,但這種 “一刀切” 的設計往往導致操作時肩頸酸痛。科學的臺面高度應遵循 “手肘法則”:站立時手肘自然下垂,臺面高度以距離手肘 10-15cm 為宜。例如,身高 160cm 的用戶,臺面高度建議 75-80cm;175cm 以上的用戶,85-90cm 更符合人體工學。
對于 “洗切炒” 動線,可采用高低臺設計:水槽區臺面比烹飪區高出 5-10cm,洗菜時無需過度彎腰,炒菜時手臂也能保持舒適角度。以一個 6 米長的 U 型廚房為例,高低臺設計能使日常操作效率提升 30% 以上。
二、柜體深度:收納容量與操作安全的平衡
常見地柜深度為 55-60cm,這個尺寸既能容納炒鍋、電飯煲等大型廚具,又能避免轉身時磕碰。但需注意:若廚房空間狹窄,50cm 的超薄柜體更適配,搭配抽拉式層板,仍能保證收納力。吊柜深度通常為 30-35cm,既能避免碰頭,又能存放碗碟、調料等輕量物品。
島臺作為現代廚房的 “多功能樞紐”,深度可拓展至 65-70cm,內置抽屜與開放格,滿足備餐、用餐、收納等復合需求。某開放式廚房案例中,70cm 深的島臺嵌入電磁爐與洗碗機,成為家庭聚會的核心區域。
三、層板間距:按需定制的收納哲學
地柜層板默認間距為 25-30cm,但實際應根據物品高度靈活調整:
吊柜層板間距建議 20-25cm,上層存放不常用物品,下層放置常用調料罐、馬克杯。若安裝升降拉籃,層高可壓縮至 15cm,充分利用垂直空間。
四、特殊空間的尺寸巧思
五、測量避坑指南
合理的櫥柜尺寸是廚房實用性的靈魂。從臺面到層板,每個數字都是為生活量身定制的細節。在裝修前,不妨拿卷尺模擬操作動線,記錄最舒適的高度與間距,讓櫥柜真正成為烹飪時的 “得力助手”。
