瀏覽量: 666次 2023-07-19 09:50:09來源:青庭設計裝飾
拒絕“過度裝修”已然成為新時代所追求的效果,勞累了一天回到家中,可以一擁無壓輕松的居家氛圍。本期屋主夫妻就拒絕“過度裝修”,透過無壓彩度,漫天展地為新房打開新生活藍圖,濃郁生活感隨著寬敞的空間,凝現出一股簡約、清新脈流,生活輕盈自在。整體裝修堪比教科書,完工被超多人喜歡。
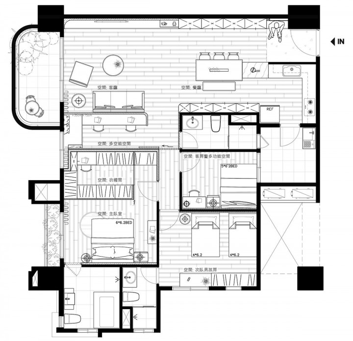
戶型圖
原戶型是四房格局,改造后將原有四房拆解為三房,剩下的一間臥室合并到主臥打造成衣帽間。其次公共空間采用開放式布局,LDK一體設計,動線流暢、空間也更顯寬敞。
玄關
玄關簡約低調,耐磨仿木地板揭開返家序幕。仿木地磚既有木質的溫潤,又有地磚的耐磨特質,效果甚好。一門到頂的鞋柜設計,極大地提高了玄關收納水平。
引入灰泥色調作為墻面裝飾,為空間增添一抹靜謐感,縱使外頭喧囂雜亂,回到家也可以心緒平和。換鞋凳上方設計了圓形掛衣鉤,既方便懸掛衣物,又可以裝飾墻面。
客廳
客廳簡約低調有質感,透過無壓彩度提升空間舒適感。公共空間鋪設木地板,既實現了功能區的跨度,又讓赤腳行走更舒適。窗簾改用百葉簾設計,靈活可控也奠定了空間簡約基調。
電視墻以灰泥色裝飾,略帶粗獷氣質,搭配輕薄懸浮電視柜和暖色燈帶,使得冷灰調家景,跳脫單一色調。整體極簡設計,沒有多余的造型裝飾,簡單實用又顯高級。
客廳與書房采用半高隔斷設計,既劃分了功能區,還保證了開闊空間感。居家辦公室也可以觀察到客廳的情況,也方便日常交流互動。
書房
開放式的書房,引入了圓弧設計,半高隔斷墻由木工收起邊角,視覺溫潤也減少日常磕碰疑慮。刻意壓縮了隔斷尺寸,給予了更寬敞的過道空間。
書房延續了懸浮設計概念,降低了書桌體量,空間更舒適寬松。書房背景墻以單面粉色彩墻裝飾,不僅可以豐富空間色彩,還可以凸顯個性。除了書桌外,靠窗還設計了臥榻,可以享受舒適的閱讀環境。
餐廳
餐廳簡約實用,L型的烹飪區延伸擺放了簡易餐桌椅子和條凳,使廚房與餐廳合二為一。
餐邊柜根據用餐習慣定制而成,外觀造型與常見餐邊柜有所不同。收納高柜,搭配小家電平臺和灰玻璃酒柜,造型別致避免了一整面儲物柜的單調,更有趣味性。
廚房
L型廚房設計,白色石英石臺面搭配木質櫥柜,低調沉穩有質感。櫥柜統一采用無明裝門把手設計,整體效果更加簡潔。
主臥
改造后的主臥空間,合并了兩個相鄰的臥室,打造成帶衣帽間的套間。延續了客廳的冷灰色調,搭配柔和舒適的軟裝,靜謐氛圍中又帶有一絲溫柔。取消成品床頭柜,無砌作制式床頭柜,更浮顯全域張力。
衣帽間無明窗,采光略有不足。設計上引入鋁框拉門與主臥為界,并打造開放式吊掛區。一字型動線,帶入空間通透感,搭配落地時抽屜柜與高柜,大幅提高衣帽間收納水平。
次臥
次臥空間相對寬敞,作為學齡前兄弟倆的睡眠空間。兩張單人床設計,搭配木質床頭背板,與隱藏燈帶,簡潔又層次感。
考慮到以后會轉換成單人居住空間,以活動家具拉出明確空間軸線,適量的柜體設計,滿足了各個成長階段的物品收納,同時不影響采光。
【圖文來源網絡,如有侵權請聯系刪除】

已經有123444人報名